Het college van burgemeester en wethouders heeft groen licht gegeven voor het definitieve stedenbouwkundig ontwerp (DSO) voor het woningbouwplan Langeveld in Sassenheim. Dit ontwerp is een soort plattegrond van de wijk die gebouwd gaat worden. Hierin staat bijvoorbeeld waar de huizen komen, waar de straten, wandel- en fietspaden komen en waar de ruimte voor groen en water is bedacht. Met het ontwerp krijgt de nieuwe woonwijk, die ruimte biedt aan ruim 150 woningen, zijn definitieve vorm. De gemeenteraad van Teylingen neemt hier uiteindelijk het definitieve besluit over.
Wonen in een groene wijk die klaar is voor de toekomst
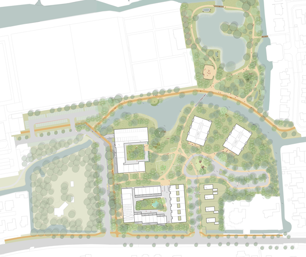
Langeveld wordt een groene woonwijk met verschillende typen woningen aan de zuidrand van Sassenheim. De wijk krijgt een mix van 30% sociale huurwoningen, 54% huur- en koopwoningen in het middensegment en 16% duurdere koopwoningen. Samen met Woonstichting Stek en stichting Knarrenhof ontwikkelt de gemeente een buurt waar zowel jongeren als ouderen prettig kunnen wonen.
Het plan bestaat onder andere uit:
- Een Knarrenhof met 36 appartementen voor senioren, inclusief gezamenlijke ontmoetingsruimte (hofhuis) en tuin (hoftuin);
- Een hof met 15 appartementen, 15 rijwoningen en 6 levensloopbestendige patiowoningen (woningen die geschikt zijn voor oudere inwoners);
- Twee appartementengebouwen met in totaal 76 huurappartementen;
- Vier vrijstaande koopwoningen op vrije kavels.
Het ontwerp is gemaakt door OKRA in samenwerking met de gemeente, Stek en Knarrenhof. Er is veel aandacht besteed aan duurzaamheid, aanpassing aan de klimaatverandering en het behouden van erfgoed. Zo blijft bijvoorbeeld de historische vindplaats van het voormalige Huis Ter Wegen behouden. Verder wordt ook een nieuw leefgebied ingericht voor de rugstreeppad.
Ook het naastgelegen Park Ter Wegen krijgt een nieuwe inrichting, mede op basis van ideeën van omwonenden. In het najaar van 2025 worden hier de rugstreeppadden uitgezet, waarmee een belangrijk onderdeel van het ecologisch plan wordt afgerond. Een ecologisch plan zorgt voor planten, dieren en een gezonde leefomgeving.
Duurzaam wonen in moderne dorpen
Wethouder Marlies Volten is blij met definitieve stedenbouwkundig ontwerp voor Langeveld: ‘Er is grote behoefte aan nieuwe woningen in verschillende typen. Zo ontstaat er meer doorstroming en blijft het prettig wonen voor iedereen: voor ouderen, jongeren, kwetsbaren, gezinnen en alleenstaanden. Bij de bouw van nieuwe woningen hebben we zoveel mogelijk oog voor duurzaamheid. En waar mogelijk wijzen we woonruimtes in eerste instantie toe aan Teylingers.’
Ter inzage
Het ontwerp TAM-omgevingsplan ligt sinds donderdag 9 oktober tot en met woensdag 19 november 2025 ter inzage. Inwoners kunnen in deze periode een zienswijze indienen. Daarna wordt het plan besproken in de commissie Ruimte en vervolgens in de gemeenteraad, naar verwachting in het tweede kwartaal van 2026.

